| 迅捷CAD编辑器软件 v1.1大小:537 KB 办公软件 |
迅捷CAD编辑器是一款功能强大的专门应用于图纸DWG格式文件的编辑软件, 主要为DWG、DXF等文件格式图纸提供浏览、编辑功能。 使用迅捷CAD编辑器不但支持多种图纸格式的浏览, 还全面支持图纸编辑功能, 功能完全超越同类图纸编辑工具。 软件特色:功能全面:软件支持图纸浏览、编辑、批注、格式转换等复杂处理, 无需AutoCAD支持。 全面兼容:软件基本支持所有格式的工程图纸文件, 包括常见的CADDWG、DXF、... |
| 查看详情 |
迅捷CAD编辑器打印出文件的图文操作

1、先在电脑上安装好迅捷CAD编辑器, 双击运行软件如图。

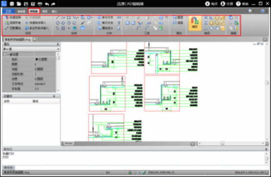
2、接下来, 我们在软件上打开文件, 在“编辑器”菜单中, 借助工具对文件进行编辑、修改。

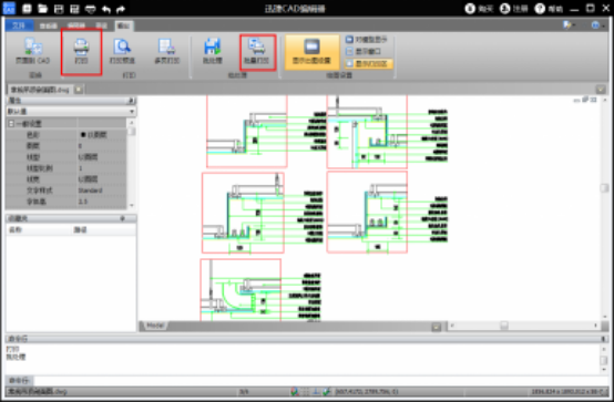
3、当我们完成文档编辑后, 我们便可以将文档打印出来了。 点击软件菜单栏上的“输出”。

4、这时候我们可以看到多种文件打印方式, 一般情况下, 我们可以先点击“打印预览”, 查看一下文档打印后的显示。

5、接下来单击“打印”, 将设置好的文件打印出来即可。 要是需要批量打印文件, 也可以点击“批量打印”按钮。
















